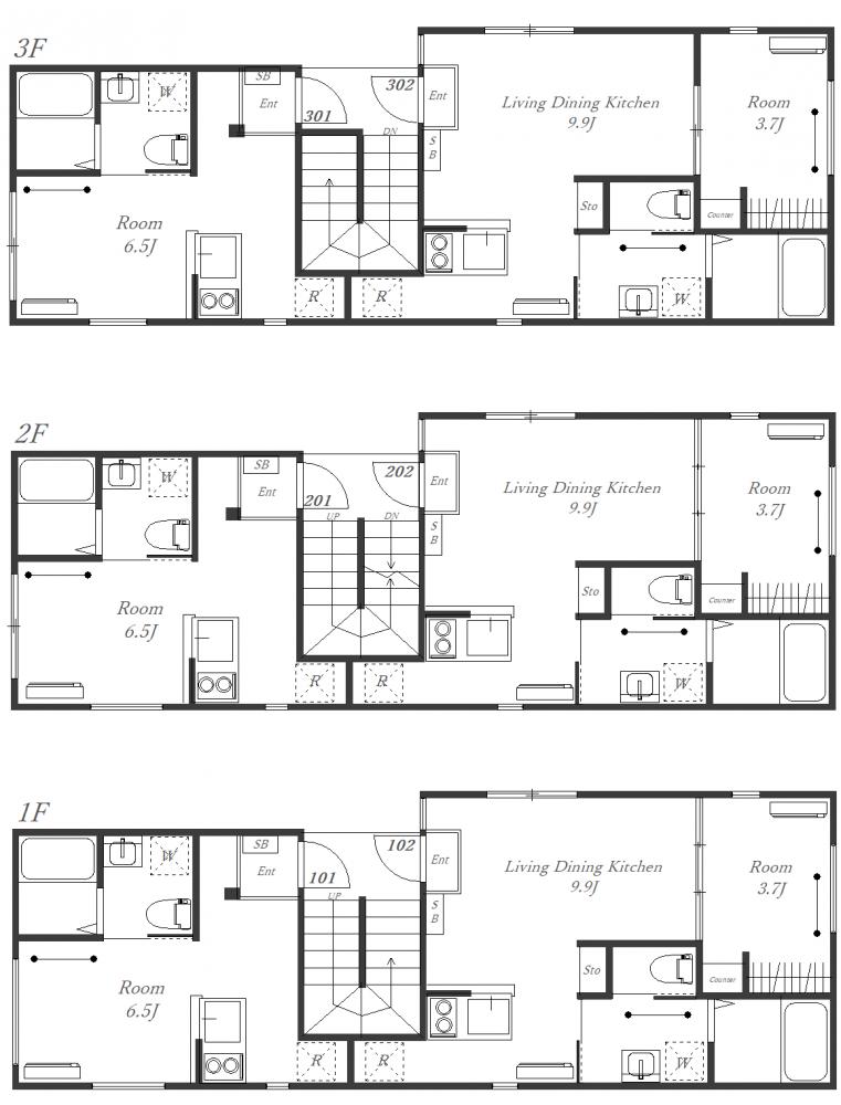
T-azul岸根公園302号室 ブルーライン『岸根公園』駅 徒歩6分
東急東横線『白楽』駅 徒歩20分
の1LDK賃貸アパート | 横浜エリアの賃貸管理・不動産売買・相続のご相談なら株式会社アルプス建設
T-azul岸根公園302号室
| 賃料 | 賃料:111,000円/5,000円 |
|---|---|
| 交通 | ブルーライン『岸根公園』駅 徒歩6分
東急東横線『白楽』駅 徒歩20分 |
| 住所 | 横浜市神奈川区六角橋6丁目25-17 |
| 種別 | アパート |
| 構造 | 木造3階建 |
| 間取り | 1LDK |
| 階数 | 3階 |
| 設備 | ☆ 都市ガス
☆ オートロック ☆ 宅配ボックス ☆ ネット無料 ☆ システムキッチン(IHコンロ2口) ☆ 浴室乾燥機 ☆ 独立洗面化粧台 ☆ バス・トイレ別 ☆ 温水洗浄便座 ☆ エアコン2基 |
★ 2025年11月完成・新築 ★
☆ 1フロア2住戸・全戸角部屋・2面採光 ☆
最寄駅徒歩6分
春には満開の桜が楽しめる岸根公園目の前!
お気軽にお問合せください♪
☆ 1フロア2住戸・全戸角部屋・2面採光 ☆
最寄駅徒歩6分
春には満開の桜が楽しめる岸根公園目の前!
お気軽にお問合せください♪

営業時間:9:30~17:30 定休日:水曜日
Copyright (C) alpskensetsu All Rights Reserved.














