岸根公園駅近に誕生。緑と都市をつなぐ新築アパート「T-azul岸根公園」【2025-12-05更新】 | 横浜エリアの賃貸管理・不動産売買・相続のご相談なら株式会社アルプス建設
-
岸根公園駅近に誕生。緑と都市をつなぐ新築アパート「T-azul岸根公園」2025-12-05
横浜市神奈川区六角橋、ブルーライン「岸根公園駅」から徒歩すぐ。公園の緑を目の前に望む場所に、新築アパート 「T-azul岸根公園」 が誕生しました。
12月竣工予定、年内入居も可能な新しい住まいです。
■ 岸根公園〜新横浜エリアの魅力
岸根公園駅は、横浜駅からわずか4駅という近さでありながら、
街全体が穏やかで落ち着いた雰囲気に包まれています。
駅名にもなっている岸根公園は、広い芝生と桜並木が象徴的なエリア。
春には満開の桜が咲き誇り、季節の移ろいを間近に感じられる人気のスポットです。
また、新横浜駅までは徒歩26分。自転車で10分ほどの距離にあり、
新幹線を利用する出張や旅行、都内方面へのアクセスにも便利です。
周辺には大型商業施設や飲食店も多く、生活利便性も十分。
「自然と都市の両方を感じながら暮らせる」バランスの良いロケーションが魅力です。
さらに、すぐ近くには当社の保有物件 「グランデ岸根公園」 もあり、
24時間対応の「LOOPポート」を設置するなど、地域一帯で快適な暮らしを支える管理体制を整えています。
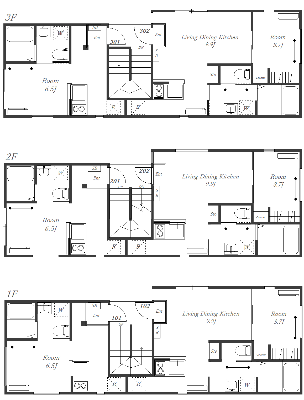
■ 建物概要と間取り


「T-azul岸根公園」は 全6戸構成。
1Rタイプ(17.17㎡)が3部屋、1LDKタイプ(30.06㎡)が3部屋のラインナップです。
すべての住戸が角部屋・2面採光となっており、明るく開放感のある空間設計。
外観は、モノトーンを基調としたシックなデザイナーズ仕様。
周囲の緑と調和しながらも、しっかりとした存在感を放っています。
2階・3階の1Rタイプからは、天気の良い日には富士山を望むこともできる特別な眺望です。



■ 室内設備と暮らしの工夫
設備面でも、日々の快適さを重視しました。
-
エントランスはオートロック付きで安心のセキュリティ。
-
全部屋に**カウンターキッチン(IH2口)**を採用し、
コンパクトながら調理スペースをしっかり確保。
-
独立洗面台・浴室乾燥機・エアコン完備で、設備も充実。
-
全戸に姿見を置けるスペースや収納性の高い玄関まわりを備え、
1Rタイプではゴルフバッグやアウトドア用品などもすっきり置けます。
シンプルな間取りの中に、生活動線を意識した細やかな工夫が随所に感じられます。
「コンパクトでも居心地の良い空間」を求める単身者・カップルの方におすすめです。




■ 管理体制と入居サポート
「T-azul岸根公園」は、当社が建物の管理・募集・入居サポートまで一貫して担当いたします。
入居前の内覧からご契約、入居後のトラブル対応まで、
地域密着で安心して暮らしていただける体制を整えています。
また、建物の向かいには広大な公園があり、
日中は静かで、夜は防犯灯と周囲の住宅街の灯りで安全性も確保されています。
自然と利便性が両立する、横浜らしい住環境といえるでしょう。
■ 最後に
「T-azul岸根公園」は、
駅近・新築・デザイン・セキュリティのバランスが取れた、
これからの暮らしにぴったりのアパートです。
お部屋の内観・外観写真も随時更新しております。
年内入居も可能となっておりますので、
ぜひこの機会にお問い合わせください。
所在地:横浜市神奈川区六角橋6丁目
交通:横浜市営地下鉄ブルーライン「岸根公園」駅 徒歩6分
構造:木造3階建/全6戸(1R・1LDK)
竣工:2025年12月予定
ページ作成日 2025-12-05
-
- 賃貸管理のご相談が増えている理由と、当社が大切にしている管理の考え方
- お部屋探しは「早め」が正解。横浜市内で今起きていること
- 新年のご挨拶|創業40年を迎える今年の取り組み
- 新築アパート「LINKS YOKOHAMA SASABORI」管理・募集開始のご案内
- 新規保有物件のお知らせ|町田市金森東「タイセイ第二コーポ」取得
- 岸根公園駅近に誕生。緑と都市をつなぐ新築アパート「T-azul岸根公園」
- お引っ越しシーズンを前に、空室の少ない現状について
- 共用部分を整える季節。建物の印象を左右する小さな工夫
- 消防用設備点検の基礎知識と、テナントビル運用における注意点について
- 当社が運営に携わるシェアオフィス「ニサンカイ(NISANKAI)」をご紹介します
- もっとみる
- 2026年02月(0)
- 2026年01月(3)
- 2025年12月(5)
- 2025年11月(6)
- 2025年10月(0)
- 2025年09月(0)
- もっとみる

営業時間:9:30~17:30 定休日:水曜日








